当前位置:首页/案例/案例详情页

南洲国际文华苑-文华苑130平米装修效果图_田园风格

设计师:吴方荣创建时间:2020-07-16 16:08:14

楼盘

面积
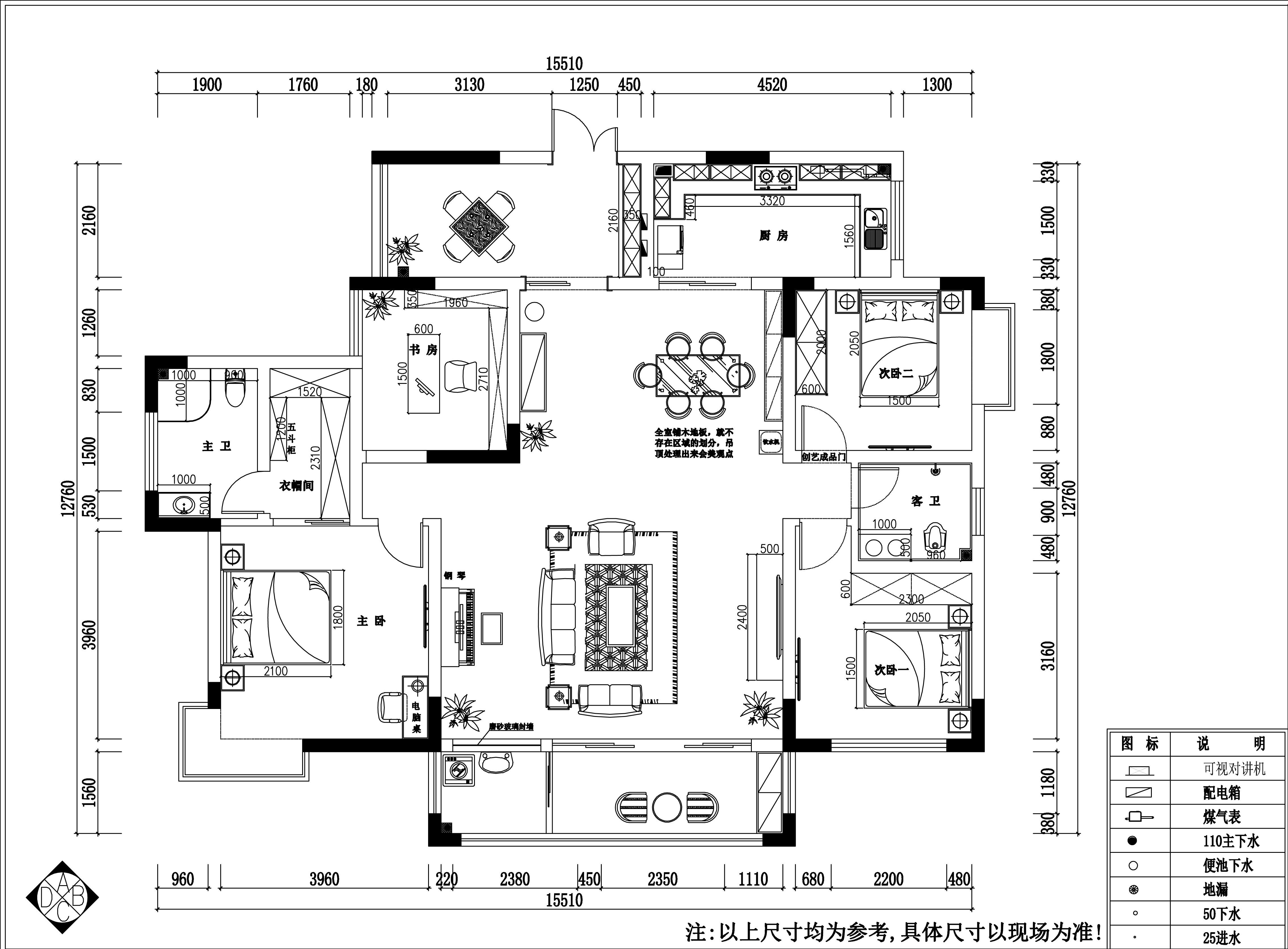
130㎡

户型
4室2厅2卫

风格
乡村田园

本案设计理念:

2020年7月11日-【兴义创艺装饰cyzs97】本案是南洲国际文华苑130平米的田园风格装修效果图。田园风格是通过装饰装修表现出田园的气息,不过这里的田园并非农村的田园,而是一种贴近自然,向往自然的风格。

峰和四季130平米新中式风格

专业整装报价

预约新家装修方案

为了互联网安全,我们已对您的个人信息加密*

猜你想看

查看更多>>